Constructeur de maisons individuelles
dans la Manche

Construction 5 chambres à Tollevast

Tollevast
168 m²
5 chambres
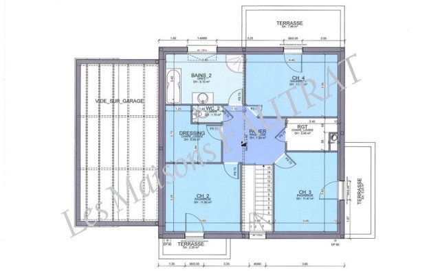
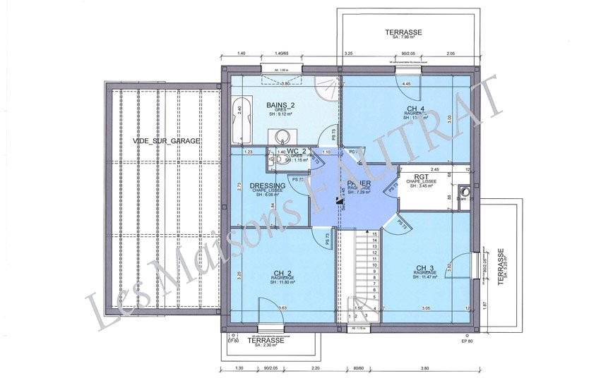
Vaste maison design à étage comprenant un très grand séjour de plus de 48 m² avec cuisine ouverte, 4 chambres dont une au rez-de-chaussée avec salle de bains attenante. A l'étage, un dressing de 6 m² et un cagibit de 3,45 m² apporte tout le rangement nécessaire. Les 3 chambres de l'étage pocèdent chacune sa propre terrasse.
maison-etage-tollevast-5568__
maison-design-tollevast-7484__
perspective-maison-etage-5162__
elevation-maison-design-8813__
plan-rdc-maison-5548__
plan-etage-maison-7048__
Back to Top