Constructeur de maisons individuelles
dans la Manche

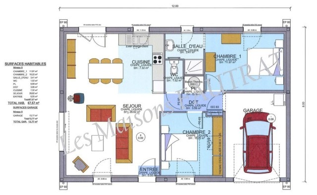
Construction 2 chambres à Valognes

Valognes
95 m²
2 chambres
Maison de style traditionnelle, cette construction offre la possiblité d'aménager les combles afin d'augmenter la surface qui est de 67,57 m² au rez-de-chaussée. Deux belles chambres dont une avec salle d'eau attenante ainsi qu'un séjour de plus de 28 m² avec une cuisine ouverte de 7,32 m² peuvent accueillir une famille avec un enfant.
maison-traditionnelle-valognes-2233__
perspective-maison-3chambres-3470__
elevation-maison-valognes-1372__
plan-maison-plainpied-3264__
plan-combles-amenageables-9354__
Back to Top